お電話でのお問い合わせは

0120-14-3323

受付時間 8:30〜17:30

Model House

茂原 高師モデルハウス

彩り豊かな生活を支える庭と
一体化した LDKをもつ家

茂原 高師モデルハウス

茂原

高師モデルハウス

彩り豊かな生活を支える庭と
一体化したLDKをもつ家

彩り豊かな生活を支える庭と 一体化したLDKをもつ家

幸せにあふれた
新しい住まいの
扉を
開けよう

『PORTA ポルタ』イタリア語で
門、入口、玄関口、扉などの意味。

彩り豊かな生活を支える庭と、
一体化したLDKをもつ家
(ゆるやかにつながる家)

外部空間をパノラマ状に切り抜くLDKの大開口サッシは ふんだんに庭の風景を取り込み 外と中が中間領域を通じて緩やかにつながる。

水平に伸びる直線で構成される深い庇や低い屋根のラインは 水平性を強調し、気品とモダンが調和して美しく佇む。

おかげさまで
「注文住宅販売」実績

エリアNo.1 地域ビルダーランキング 茂原商圏10年連続第1位に認定されました。
Point 01

Dining Kitchen

ダイニングキッチン

家族の会話が弾む対面式キッチンと、動線に配慮したダイニング。毎日の家事や食事の時間が、より快適で楽しいひとときに。

Point 02

Living

リビング

空間いっぱいに広がった吹き抜けに静かに佇む大きな梁。
1つの空間に納めたLDK空間は、ここで暮らすご家族を見守り、穏やかな時間をともに過ごすことができます

Point 03

Family Laundry

ランドリー

自然光が差し込む明るいランドリールーム。動線を考えた配置で、毎日の洗濯作業をスムーズに行えます。

Point 04

Master Bedroom

主寝室

ゆとりある主寝室は収納も充実。自然光を取り込む設計で、心地よい目覚めと安らかな眠りを約束します。

茂原市
高師モデルハウス

キーワードは中間領域

Data

延床面積
1F/116.72㎡ 2F/44.50㎡(13.46坪)
土地面積
161.22㎡(48.67坪)
工事面積
203.27㎡(61.36坪)

※販売価格は営業スタッフにお問合せください。展示期間終了後、販売します

住所
千葉県茂原市高師1801-1
定休日
水曜日
電話
0475-23-3323
OPEN
AM10:00〜PM5:00

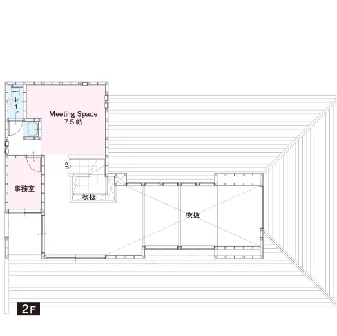
Floor Plan

Map

自然素材×イタリア製建材×デザイナーズ住宅

自然素材

Comfortable environment 快適環境
×

イタリア製建材

High performance 高性能
×

デザイナーズ住宅

Beyond generations 世代を超えて

モデルハウスへぜひお越しください

ご来場予約キャンペーン開催中

Present Campaign

来場予約フォームから予約+事前アンケートのご回答で

QUOカード QUOカード

5,000円分の
QUOカードプレゼント!

期間

3/31

まで

来場予約フォームから予約+
事前アンケートのご回答で

3,000円分のQUOカードプレゼント!

ご来場プレゼント進呈条件

掲載の項目❶~❸ すべてに該当するお客様1組様につき1回の進呈とさせていただきます。

  • ❶将来的に協和ハウジングでの建築をお考えの方。
  • ❷はじめて協和ハウジングのモデルハウスへご来場される方。
  • ❸過去に協和ハウジングの商品カタログ等の資料をご請求されていない方。
  • ※[事前予約のお客様]店舗の予約状況によっては、ご予約時間帯等を調整いただく場合があります。
3,000円分のQUOカードプレゼント!

ご来場予約フォーム

・ご予約を希望される方はこちらのフォームにご記入ください。

・フォームからの予約は前日までにお願いいたします。

・当日予約の場合は、お電話 0120-14-3323 にて伺います。

※当フォームはお客様専用です。営業・勧誘等のご連絡は固くお断りしております。 営業のご連絡には対応いたしかねますのでご了承ください。


    ※当社から予約確認、確定のご連絡をもって受付完了とさせていただきます。
    ※当日のご来場予約については直接ご連絡いただきますよう、ご協力お願いいたします。

    個人情報の取扱いについてをご覧いただき、ご同意いただいた上で「確認画面へ進む」 ボタンをクリックしてください。

    ※当フォームはお客様専用です。営業・勧誘等のご連絡は固くお断りしております。 営業のご連絡には対応いたしかねますのでご了承ください。

    Top Page